011 - Beaumarchais
Mission : Transformation of a former commercial space in a loft
Location : Montreuil, 93, France
Date : 2021
Architecture : miogui architecture
Construction : FC renovation
Photographer : Philippe Billard
Project cost : 170 000 €
Construction time : 4 months
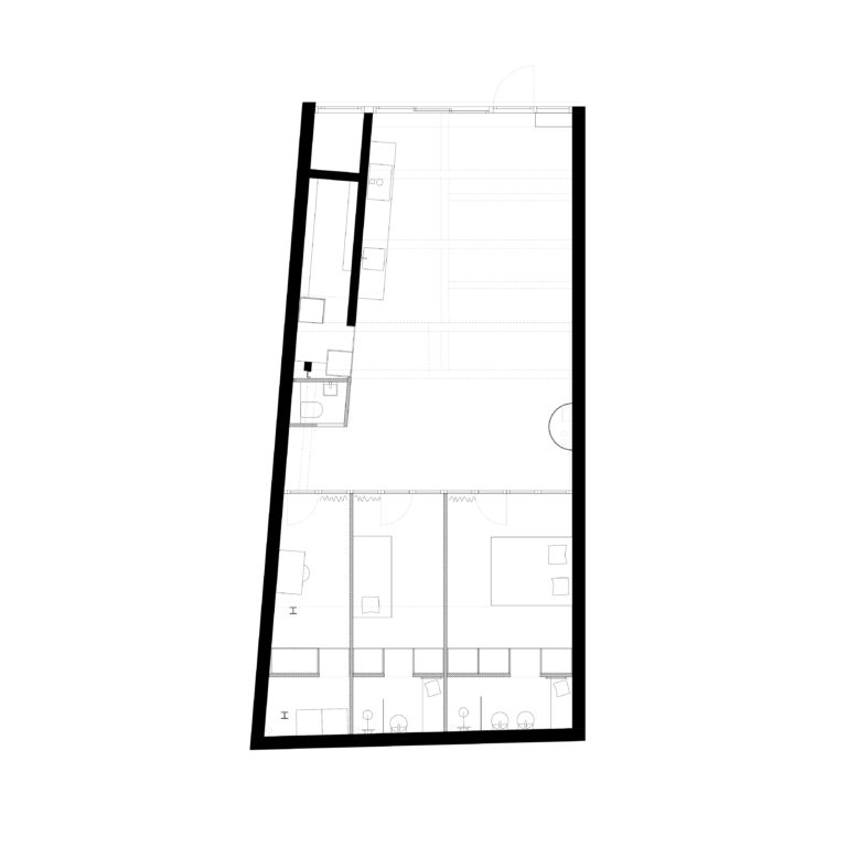
Surface area : 96 m2
en//
Project Beaumarchais takes place in a little alley, calm and vegetal, sheltered from the noisy neighborhood.
The former commercial unit has to be transformed into a loft. The existing space is defined by its structure, metallic ceiling and beams, cinder blocks on the walls, by its 3.85m under the ceiling and by its depth, with only one facade towards the exterior to bring light in.
Existing materials are left «as found», just painted in white. The partition of the space is organized in layers from the most private functions in the back to the public ones close to the facade. Layers of glass separate the functions and allow light to penetrate until the darkest point. Curtains ensure privacy.
The living room is characterized by technical elements. All the wires, neon lights and pipes are arranged on rails hanging from the ceiling and painted in white. The electricity and water meter are hidden in a semi-cylindrical volume that uses the technical issue as a pretext of expression. Same idea for the gas box at the entrance, covered with mosaics to make it more abstract. This white mosaic extends on the floor along the facade to create a transition between inside and outside.
The kitchen is a blue monolith placed against the white cinder block wall. This geometrical element creates an abstract landmark in the space. All the technical elements (oven, fridge, microwave) are placed behind hidden doors in the wall. A mirror in one piece reflects the light of the outside, extends the facade in its reflection, and enlarges the space.
A huge wooden glass wall separates the living room from the bedrooms. The vertical proportion of these one piece frames enhance the volume of the space. Doors are hidden thanks to the same high and frame thickness of the fixed ones, to be more abstract. No handles, just a little hollow for the fingers on the side.
The ceilings are lowered in bedrooms to hide the technical features and calm the expression. A simple light sphere floats in the space in front of a mezzanine hung by thin wires. Above the mezzanines, a large piece of glass brings light into the bathrooms. No frame there, just a simple silicone joint. All the materials and technical elements are white, a neutral atmosphere in which life can take place.
The bathrooms are lifted up on a concrete step, covered with mosaics, to give enough slope to the pipes to reach the evacuation. A pink joint brightens up the space, as well as the wooden ceiling. Technical elements such as sink, mirror, lamp, are chosen to be geometrical.
The relationship with the client was one of the key points of the project. At the beginning he was afraid of the coldness of the materials and the too much industrial feeling. But after discussions we managed to create a balance between industrial elements which are set against color, curve, wood and abstraction. The trace of the former space and of the building structure can still be seen and understood.
fr//
Restructuration complète d’un loft au fond d’une ruelle végétale à Montreuil. Ce grand volume de 96m² au sol et 3m80 sous plafond outre un volume généreux, n’offre qu’une seule façade, le fond du local étant dans l’ombre. Tout l’enjeu du projet a été de créer les parois les plus transparentes possibles tout en assurant l’intimité afin que tous les espaces bénéficient de lumière naturelle.
Les matériaux sont laissés bruts et sublimés, peinture blanche sur les parpaing des murs, bas acier laissé apparent au plafond. Tout le système électrique est créé en apparent afin de se fondre dans cette ambiance industrielle, tubes IRL, chemin de câble métallique. Pour contraster avec cette ambiance industrielle, une grande verrière bois de 3m45 de haut vient apporter de la chaleur et de l’intimité aux chambres. La cuisine, colorée, tel un objet en applique contre le mur, apporte une touche de modernité.
Au fond du loft, les pièces humides, salle de bain et buanderie bénéficient d’une lumière indirecte au-dessus des placards des chambres. Ce plan en bandes successives du plus public au plus privé hiérarchise les espaces.
Tous les éléments techniques du projet sont rendus abstraits à l’image du coffrage électrique arrondi, ou du coffrage gaz recouvert de mosaïque. Cette abstraction permet de leur donner une force et une présence dans l’espace.
